Продажа квартиры ЖК «Пролисок» , Дворец Спорта , Героев Харькова просп. , 156, Харьков

3 комн. · 3/10 эт. · 105/70/15 м²

72 000 $
Номер: SF-3-302-837

Информация о предложении

Просторная 3-комнатная квартира в современном ЖК «Пролесок» ,светлая и просторная, всего в нескольких минутах от станции метро Дворец спорта.
Удобная планировка: три раздельные комнаты, что идеально подойдёт для семьи или комфортного зонирования пространства.
Квартира находится в состоянии под ремонт, что даёт отличную возможность реализовать интерьер полностью под себя — без переплат за чужой дизайн.
Дом новый, современный, с ухоженными подъездами и благоустроенной территорией.
Закрытый жилой комплекс — территория полностью ограждена, вход только по ключу, что обеспечивает безопасность и приватность для жителей.
Из окон открывается приятный вид на двор и окружающее пространство, есть балкон для отдыха.
Отличное расположение:,развитая инфраструктура
магазины, транспорт, всё необходимое в пешей доступности.

  • Цена: 72 000 $
  • Цена за кв. метр: ≈686 $
  • Ремонт: без внутренних работ
  • Класс жилья: комфорт
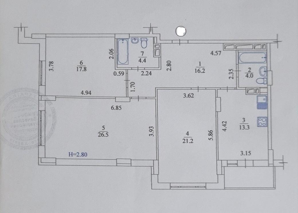
  • Типовая планировка: нестандартная планировка
  • Число комнат: 3 комн.
  • Площадь общая, м²: 105
  • Площадь жилая, м²: 70
  • Площадь кухни, м²: 15
  • Этаж: 3/10
  • Год постройки: 2021-2025, новострой
  • Санузлов: 2
  • Район города: Новые дома , Дворец спорта
  • Расположение: спальные районы
  • Вид недвижимости изолированная

Коммуникации

Вода:
центральная;
Отопление:
центральное;

Инфраструктура и сервис

Общественный транспорт:
метро - Дворец Спорта (20 мин. пешком, 7 мин. на транспорте);

Прочее

Дата обновления информации:
12.05.2026 16:37;

Наши сотрудники на связи

Photo

АН Valion

С удовольствием ответим на вопросы с 9-00 до 18-00 в будние дни, с 10-00 до 16-00 в субботу.

+380 (50) 450-30-82