Продаж квартири ЖК «Гідропарк» , Київська , Шевченка вул. , 327, Харків

2 кімн. · 3/16 пов. · 67 м²

28 500 $
Номер: SF-3-194-479

Відкладено власником до 01.04.2026

Інформація щодо пропозиції

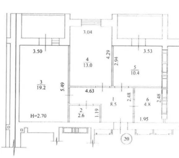
Продається 2-кімнатна квартира в новому будинку зі статусним ЖК "Гідропарк", площею 67 м², без внутрішніх робіт.

Розташована квартира в районі спальних Журавлівка, на вулиці Шевченка, поруч зі станцією метро Київська. ЖК має розвинену внутрішню інфраструктуру і зручне розташування.

Квартира розташована на 3 поверсі 16-поверхового будинку, кухня площею 10,40 м². Це житло економ-класу чекає на свого власника! Не втрачайте можливість стати власником квартири у престижному районі Харкова. Зателефонуйте нам прямо зараз для організації перегляду!

  • Ціна: 28 500 $
  • Ціна за кв. метр: ≈425 $
  • Ремонт: без внутрішніх робіт
  • Клас житла: економ
  • Типове планування: нестандартне планування
  • Схема кімнат: роздільна
  • Кількість кімнат: 2 кімн.
  • Кількість спалень: 1
  • Площа загальна, м²: 67
  • Площа кухні, м²: 10.40
  • Поверх: 3/16
  • Рік будівництва: 2021-2025, новобуд
  • Санвузлів: 1
  • Балконів: 2
  • Район міста: Салтівський напрямок , Журавлівка
  • Розташування: спальні райони
  • Вид нерухомості ізольована

Комунікації

Вода:
центральна;
Опалення:
центральне;

Параметри об’єкта

Матеріал стін:
цегла;

Інфраструктура та сервіс

Громадський транспорт:
метро - Київська (40 хв. пішки, 25 хв. на транспорті);

Інше

Дата оновлення інформації:
16.03.2026 18:39;
Відкладено до:
01.04.2026;

Наші співробітники на зв’язку

Photo

АН Valion

Із задоволенням відповімо на питання з 9-00 до 18-00 у будні, з 10-00 до 16-00 у суботу.

+380 (50) 450-30-82