Продаж квартири ЖК «Гідропарк» , Київська , Шевченка вул. , 327, Харків

1 кімн. · 15/16 пов. · 47.20 м²

29 000 $
Номер: SF-3-198-524

Інформація щодо пропозиції

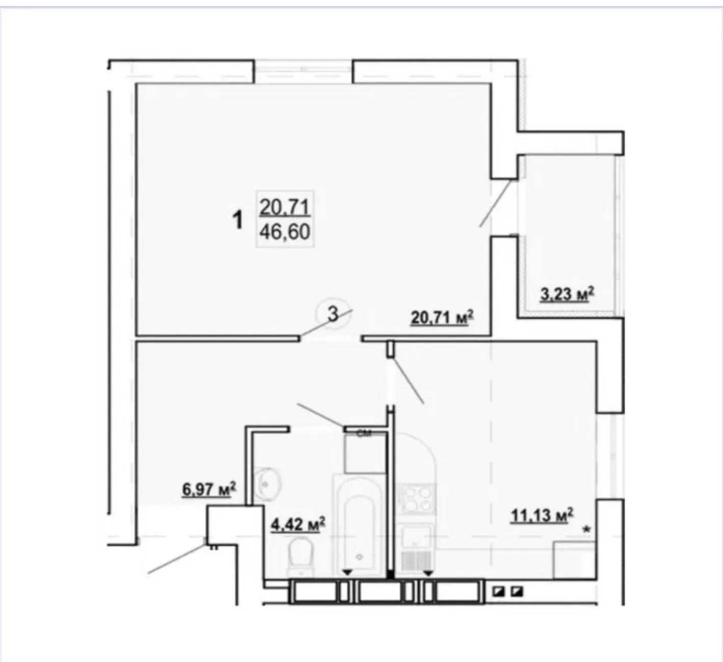
Пропоную квартиру в новому ЖК "Гідропарк" 1-кімнатну квартиру економ-класу без внутрішніх робіт, площею 47.20 м², кухня 11.20 м². Будинок розташований у Журавлівці на вулиці Шевченка, поруч зі спальними районами, близько до метро Київська.

Квартира розташована на 15 поверсі 16-поверхового будинку. Чудовий вибір для тих, хто шукає житло в Харкові.

Не втрачайте можливості стати власником цієї затишної квартири. Телефонуйте!

  • Ціна: 29 000 $
  • Ціна за кв. метр: ≈614 $
  • Ремонт: без внутрішніх робіт
  • Клас житла: економ
  • Типове планування: нестандартне планування
  • Кількість кімнат: 1 кімн.
  • Площа загальна, м²: 47.20
  • Площа кухні, м²: 11.20
  • Поверх: 15/16
  • Рік будівництва: 2021-2025, новобуд
  • Санвузлів: 1
  • Балконів: 1
  • Район міста: Салтівський напрямок , Журавлівка
  • Розташування: спальні райони
  • Вид нерухомості ізольована

Комунікації

Вода:
центральна;
Газ:
немає;
Опалення:
центральне;
Лічильники:
холодна вода, опалення;

Інфраструктура та сервіс

Громадський транспорт:
метро - Київська (40 хв. пішки, 25 хв. на транспорті);

Інше

Юридична інформація:
прописаний неповнолітній ;
Дата оновлення інформації:
16.02.2026 16:53;

Наші співробітники на зв’язку

Photo

АН Valion

Із задоволенням відповімо на питання з 9-00 до 18-00 у будні, з 10-00 до 16-00 у суботу.

+380 (50) 450-30-82