Продаж квартири 23 серпня , 23 Серпня вул. , 13, Харків

2 кімн. · 4/5 пов. · 41.90/20.70/6.70 м²

37 000 $
Номер: SF-3-232-729

Цю пропозицію уже закрито

Інформація щодо пропозиції

Продається 2-кімнатна квартира біля метро «23 Серпня», Павлове Поле

Адреса: м. Харків, вул. 23 Серпня
Район: Павлове Поле
Метро: «23 Серпня» — 10 хвилин пішки
Поверх: 4 із 5
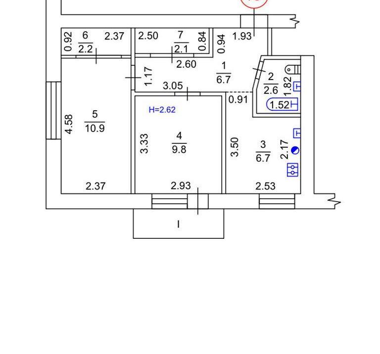
Загальна площа: 41,9 м²
Житлова площа: 20,7 м²
Кухня: 6,7 м²
Клас: економ

Опис квартири:
Продається 2-кімнатна кутова квартира з косметичним ремонтом у зручному та затишному районі.
Кімнати роздільні. Квартира була перепланована, техпаспорт замінено.

Балкон обшитий всередині та ззовні, обладнаний шафою

Санвузол суміщений

Встановлені лічильники на воду, газ і електроенергію

Гаряча вода — колонка

Є кондиціонер (інверторний)

Замінено труби, стояки, батареї, електропроводку, встановлені МПО

Підлога — лінолеум

У коридорі та кімнаті — вбудовані шафи-купе

Меблі та техніка, що залишаються:
Холодильник, мікрохвильова піч, пральна машина, пилосос, диван, шафа, кухонні меблі.

Переваги розташування:
Поруч метро, зупинка громадського транспорту, супермаркети «Клас», «Посад», «Чудо маркет», аптека у дворі, відділення «Нової пошти» поруч.

Квартира у стані «заходь і живи». Ідеальний варіант для тих, хто шукає компактне та комфортне житло зі зручною локацією.
Телефонуйте для детальної інформації та перегляду.

  • Ціна: 37 000 $
  • Ціна за кв. метр: ≈883 $
  • Ремонт: косметичний ремонт
  • Клас житла: економ
  • Кількість кімнат: 2 кімн.
  • Кількість спалень: 1
  • Площа загальна, м²: 41.90
  • Площа житлова, м²: 20.70
  • Площа кухні, м²: 6.70
  • Поверх: 4/5
  • Рік будівництва: 1971-2000
  • Санвузлів: 1
  • Балконів: 1
  • Район міста: Олексіївський напрямок , Павлове Поле
  • Вид нерухомості ізольована

Комунікації

Вода:
центральна;
Газ:
є;
Опалення:
центральне;
Лічильники:
холодна вода, гаряча вода, газ, опалення;

Параметри об’єкта

Матеріал стін:
цегла;

Інфраструктура та сервіс

Громадський транспорт:
метро - 23 серпня;

Інше

Дата оновлення інформації:
21.12.2025 13:15;

Наші співробітники на зв’язку

Photo

АН Valion

Із задоволенням відповімо на питання з 9-00 до 18-00 у будні, з 10-00 до 16-00 у суботу.

+380 (50) 450-30-82