Продаж квартири ЖК «Оазис», будинок 4 , Салтівська , Нескорених вул. , 1, Харків

2 кімн. · 14/16 пов. · 65.70 м²

35 000 $
Номер: SF-3-253-636

Інформація щодо пропозиції

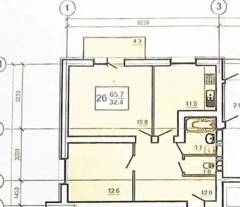
Продається 2-кімнатна квартира в новому будинку ЖК "Оазис", будинок 4. Площа квартири 65.70 м² без внутрішніх робіт.

Розташування: вулиця Нескорених, Велика Данилівка, поруч зі станцією метро Салтівська. Це спальний район Харкова. Поверх квартири 14-й у 16-поверховому будинку. Кухня квартири - 11.50 м². Клас комфорту - "комфорт".

Не упустіть можливість стати власником цієї чудової квартири! Зателефонуйте нам, щоб дізнатися більше і домовитися про перегляд.

  • Ціна: 35 000 $
  • Ціна за кв. метр: ≈533 $
  • Ремонт: без внутрішніх робіт
  • Клас житла: комфорт
  • Типове планування: нестандартне планування
  • Кількість кімнат: 2 кімн.
  • Кількість спалень: 1
  • Площа загальна, м²: 65.70
  • Площа кухні, м²: 11.50
  • Поверх: 14/16
  • Рік будівництва: 2021-2025, новобуд
  • Санвузлів: 1
  • Балконів: 1
  • Район міста: Салтівський напрямок , Велика Данилівка
  • Розташування: спальні райони
  • Вид нерухомості ізольована

Комунікації

Вода:
центральна;
Газ:
немає;
Опалення:
центральне;
Лічильники:
холодна вода, гаряча вода, опалення;

Інфраструктура та сервіс

Громадський транспорт:
метро - Салтівська (25 хв. пішки, 7 хв. на транспорті);

Інше

Дата оновлення інформації:
30.01.2026 12:24;

Наші співробітники на зв’язку

Photo

АН Valion

Із задоволенням відповімо на питання з 9-00 до 18-00 у будні, з 10-00 до 16-00 у суботу.

+380 (50) 450-30-82