Продаж квартири Аерокосмічний пр. , 193, Харків

3 кімн. · 4/5 пов. · 65.60 м²

49 500 $
Номер: SF-3-292-964

Цю пропозицію уже закрито

Інформація щодо пропозиції

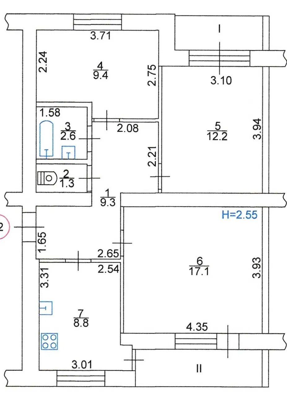
Продам 3-кімн. квартиру, район Південнопроектна, поряд з гіпермаркетом "METRO", просп. Аерокосмічний 193.
єВідновлення.

Цегляний будинок, поверх – 4/5, заг. площа – 65,6 м²., кухня – 8,8 м²., двостороння, окремі кімнати.
Два балкони: один балкон з опаленням та теплою підлогою, другий балкон з навісом з полікарбонату 3х шарового.
Капітальний ремонт (робився для себе), нова електропроводка, ванна після реставрації.
Кухня по всьому периметру у якісній плитці.
Продаж з меблями та технікою.
Фасад з північної сторони утеплений.
У під'їзді свіжий ремонт та замінені вікна.

Поряд: дитячий садок, школа, кіоски, магазини, гіпермаркет "МETRO", аптеки, кафе, зупинки транспорту.

Можна придбати за сертифікатом єВідновлення!
(У разі купівлі нерухомості за сертифікатом, покупцям надаємо консультації, супровід та допомогу в оформленні угод).

  • Ціна: 49 500 $
  • Ціна за кв. метр: ≈755 $
  • Ремонт: радянський ремонт
  • Клас житла: економ
  • Схема кімнат: роздільна
  • Кількість кімнат: 3 кімн.
  • Площа загальна, м²: 65.60
  • Площа кухні, м²: 8.80
  • Поверх: 4/5
  • Санвузлів: 1
  • Балконів: 2
  • Район міста: Одеська, група районів , Південнопроектна
  • Вид нерухомості ізольована

Комунікації

Вода:
центральна;
Газ:
є;
Опалення:
центральне;

Параметри об’єкта

Матеріал стін:
цегла;

Інше

Дата оновлення інформації:
05.05.2026 13:28;

Наші співробітники на зв’язку

Photo

АН Valion

Із задоволенням відповімо на питання з 9-00 до 18-00 у будні, з 10-00 до 16-00 у суботу.

+380 (50) 450-30-82