Продаж квартири Старий Поділ вул., 10, Полтава

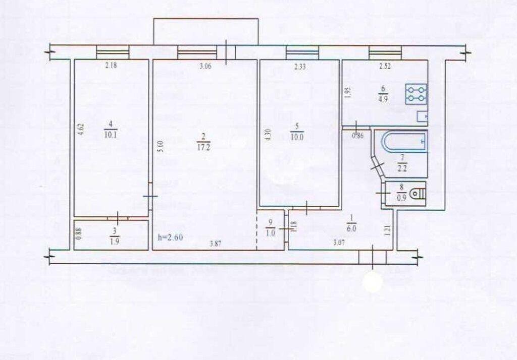
3 кімн. · 4/4 пов. · 54.90/37.30/4.90 м²

36 000 $
Номер: SF-3-289-356

Інформація щодо пропозиції

Продається 3-кімнатна квартира 54.90 м² з радянським ремонтом в Полтаві, на вулиці Старий Поділ (Поділ). Квартира розташована на 4 поверсі 4-поверхового будинку. Житлова площа 37.30 м², кухня 4.90 м².

Планування суміжно-роздільних кімнат дозволяє зручно організувати простір для сімї, поєднуючи затишок і функціональність.
Централізоване опалення забезпечує тепло взимку, а цегляні стіни створюють комфортний мікроклімат у будь-яку пору року. Право власності більше трьох років додаткова перевага для безпечної та швидкої угоди.
Квартира розташована в гарній локації з розвиненою інфраструктурою та зручною транспортною розвязкою. Поруч магазини, зупинки, школи та інші обєкти, що роблять проживання максимально комфортним.

Квартира економ-класу, ідеальний варіант для тих, хто хоче жити в самому центрі міста і робити ремонт за власним смаком. Не упустіть свій шанс на придбання цієї квартири! Телефонуйте!

  • Ціна: 36 000 $
  • Ціна за кв. метр: ≈656 $
  • Ремонт: радянський ремонт
  • Клас житла: економ
  • Кількість кімнат: 3 кімн.
  • Кількість спалень: 2
  • Площа загальна, м²: 54.90
  • Площа житлова, м²: 37.30
  • Площа кухні, м²: 4.90
  • Поверх: 4/4
  • Санвузлів: 1
  • Балконів: 1
  • Район міста: Подільський , Поділ
  • Вид нерухомості ізольована

Комунікації

Вода:
центральна;
Опалення:
центральне;

Параметри об’єкта

Матеріал стін:
цегла;

Інше

Дата оновлення інформації:
10.03.2026 12:22;

Наші співробітники на зв’язку

Photo

АН Valion

Із задоволенням відповімо на питання з 9-00 до 18-00 у будні, з 10-00 до 16-00 у суботу.

+380 (50) 450-30-82