Продаж квартири Башкирцевої Марії вул. , 20, корп. 2, Полтава

1 кімн. · 5/9 пов. · 38 м²

32 000 $
Номер: SF-3-291-734

Цю пропозицію уже закрито

Інформація щодо пропозиції

Продам 1-кімнатну квартиру у Київському районі Полтави
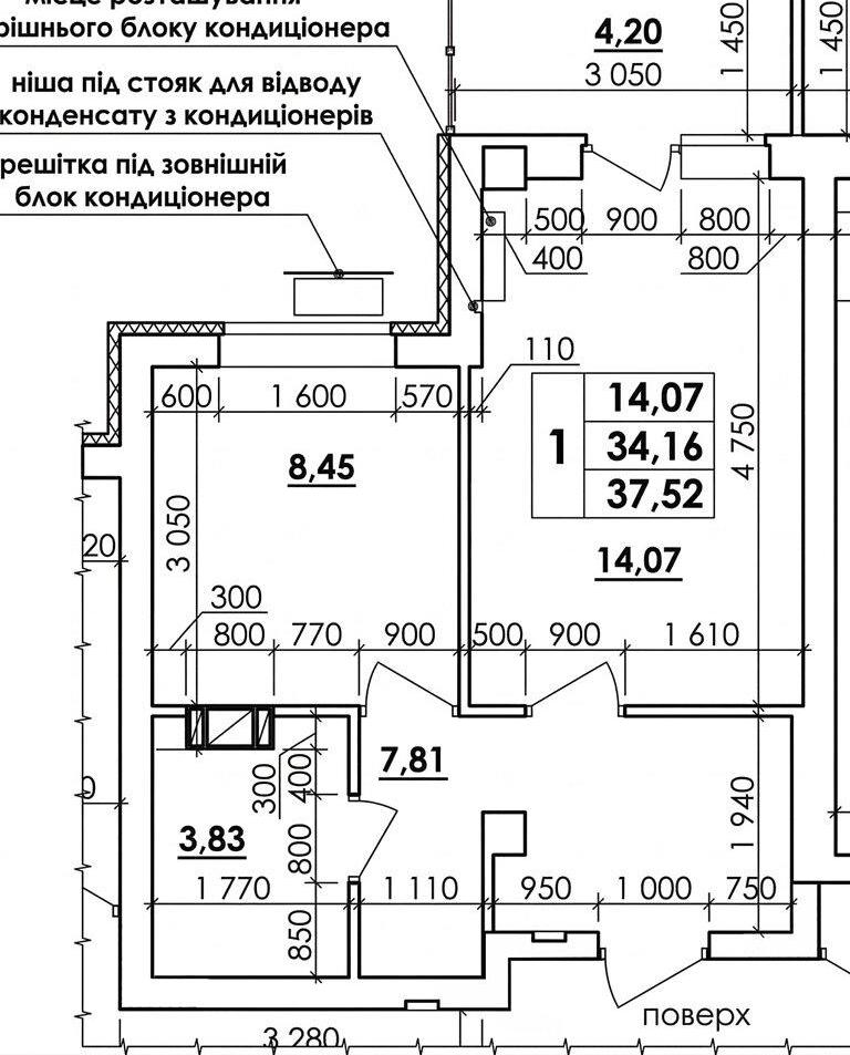
* вул. Марії Башкірцевої, 20, корп. 2

* Поверх 5/9
* Площа 38 м²
* Будинок введений в експлуатацію

У квартирі вже виконано підготовчі роботи:
* чистова стяжка під підлогу
* стартова шпаклівка стін
* розведена електропроводка
* встановлені лічильники

Квартира дуже тепла та світла, з вдалим плануванням.

* Додаткова перевага — дорогий теплий балконний блок ), замінений ще на етапі будівництва. Є можливість об'єднати балкон з кімнатою, що фактично збільшує площу до 40 м².

Чудовий варіант як для проживання, так і для інвестиції під оренду.

  • Ціна: 32 000 $
  • Ціна за кв. метр: ≈842 $
  • Ремонт: без внутрішніх робіт
  • Клас житла: комфорт
  • Типове планування: вільне планування
  • Кількість кімнат: 1 кімн.
  • Кількість спалень: 1
  • Площа загальна, м²: 38
  • Площа кухні, м²: 10
  • Поверх: 5/9
  • Санвузлів: 1
  • Балконів: 1
  • Район міста: Київський , Браїлки
  • Вид нерухомості ізольована

Комунікації

Вода:
центральна;
Газ:
є;
Опалення:
автономне;

Параметри об’єкта

Матеріал стін:
газоблок;

Інше

Дата оновлення інформації:
27.05.2026 10:21;

Наші співробітники на зв’язку

Photo

АН Valion

Із задоволенням відповімо на питання з 9-00 до 18-00 у будні, з 10-00 до 16-00 у суботу.

+380 (50) 450-30-82