Продаж будинку Гришка Академіка вул., Полтава

3 кімн. · 111/30/15 м² · 10 сот.

130 000 $
Номер: SH-195-058

Інформація щодо пропозиції

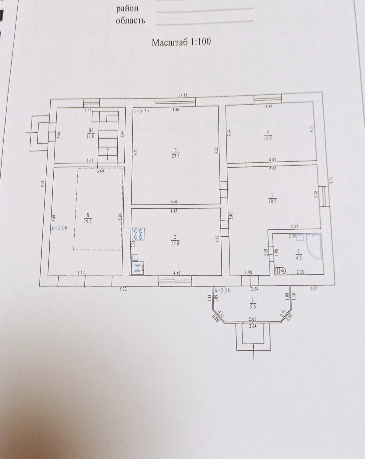
Окремий будинок 2018 року забудови у новому районі біля 13 школи 10 соток землі.
*Рівна ділянка, центральна вулиця.
*Опалення газ ,двоконтурний котел,
*централізоване водопостачання,
* вбудовані меблі - кухня, шафи купе, додатково встановлено каміно піч, зроблено вивід для підключення бензоагрегату при відключенні світла, інтернет.,
* охорона Явір.
* Гараж.
*Мансардний поверх 40 м. кв. потребує оздоблення.
*Можливий торг при огляді з реальним покупцем.

  • Ціна: 130 000 $
  • Ціна за кв. метр: ≈1 171 $
  • Клас житла: комфорт
  • Ремонт: радянський ремонт
  • Кількість кімнат: 3 кімн.
  • Кількість спалень: 3
  • Площа загальна, м²: 111
  • Площа житлова, м²: 30
  • Площа кухні, м²: 15
  • Площа ділянки, сот.: 10
  • Поверхів: 1
  • Район міста: Київський , Браїлки
  • Вид нерухомості цілий будинок

Комунікації

Вода:
центральна;
Газ:
є;
Опалення:
автономне;
Каналізація:
місцева;

Параметри об’єкта

Матеріал стін:
газоблок;

Інше

Дата оновлення інформації:
17.02.2026 12:53;

Наші співробітники на зв’язку

Photo

АН Valion

Із задоволенням відповімо на питання з 9-00 до 18-00 у будні, з 10-00 до 16-00 у суботу.

+380 (50) 450-30-82