Продаж будинку Челюскіна вул., 32, Полтава

3 кімн. · 46 м² · 10 сот.

42 000 $
Номер: SH-220-769

Інформація щодо пропозиції

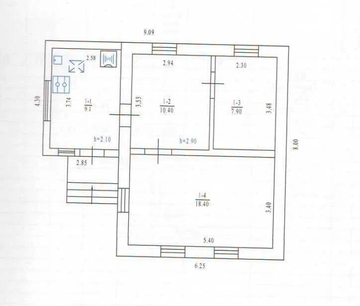
Продається цегляний будинок площею 46 м² у районі Юрівка.
Ділянка — 10 соток, рівна та доглянута.
На території є флігель, гараж і господарські будівлі.
Комунікації: газ, центральна вода, опалення — котел, каналізація — зливна яма.

Зручне розташування, поруч транспорт і магазини.
Підійде для постійного проживання або як дачний варіант.

Не втрачайте можливості стати власником цього затишного будинку в Полтаві! Телефонуйте!

  • Ціна: 42 000 $
  • Ціна за кв. метр: ≈913 $
  • Клас житла: комфорт
  • Ремонт: радянський ремонт
  • Кількість кімнат: 3 кімн.
  • Кількість спалень: 2
  • Площа загальна, м²: 46
  • Площа ділянки, сот.: 10
  • Поверхів: 1
  • Район міста: Київський , Юрівка
  • Вид нерухомості цілий будинок

Комунікації

Вода:
центральна;
Газ:
є;
Опалення:
газове;
Каналізація:
септик;

Параметри об’єкта

Матеріал стін:
цегла;

Інше

Дата оновлення інформації:
12.03.2026 14:59;

Наші співробітники на зв’язку

Photo

АН Valion

Із задоволенням відповімо на питання з 9-00 до 18-00 у будні, з 10-00 до 16-00 у суботу.

+380 (50) 450-30-82